Upper West Side Apartment Remodel

About this project

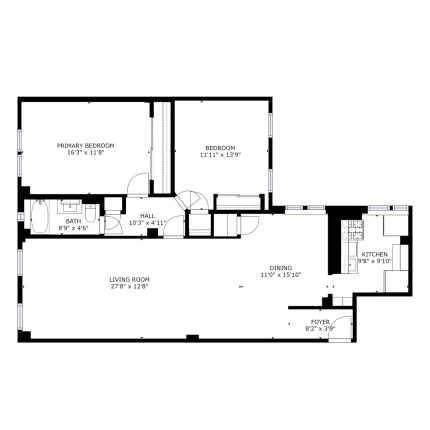
We helped the Sacara family renovate their 1,200-square-foot home in the prime Upper West Side location. The original layout included two bedrooms with a shared bathroom, a combined living/dining room area, and a separate kitchen. The family wanted to complete a full apartment renovation and make the layout more functional by adding a second bathroom, laundry room, and additional closets as well as creating an open kitchen concept. Matt, the project planner, met with the family to capture the vision, timeline, and budget. He understood the goal was to modernize the apartment while improving functionality.

Date
14 July 2022
Work
Entire Apartment
Square feet
1200
w3kiu1skcvc1ehpjxwfy wbzzxytdzajhnflcxpmj

Plan

Every renovation project starts with the planning phase led by the project planners. At the at-home visit, Matt captured a 360 tour of the apartment to get accurate measurements and fast-track the project.

Design

The design challenge was to deliver a modern yet classic aesthetic for the entire apartment that captured the family’s vision for a perfect home. The goal was to combine the kitchen and living room areas creating a harmonious flow of natural light and air; add a kitchen island with an additional seating area, and utilize every inch of usable space in the kitchen. The design solution offered a cozy seating area by the window for a morning cup of coffee which simultaneously served as a cover for all the plumbing communications and radiator. A built-in fireplace wall separated the living and dining room zones visually yet allowed them to stay bright and functional. The design and architectural teams collaborated to create multiple layouts and design solutions so the Sacara family had options. Finally, the choice was made and the clients felt confident in their decision.

Build

During the building phase, the renovation team faced unforeseen challenges with the layout, and the plans were adjusted. The architect and project management teams worked together to amend the drawings with the building board and the Department of Buildings. After the new layout was approved, a full apartment renovation included the removal and installation of all walls, bathroom and laundry room addition, and complete closet reconfiguration. Kitchen remodeling featured custom cabinetry, decorative wood island paneling, and a white marble countertop for a luxurious look. The bathroom renovation highlighted herringbone and onyx tiling for color accents. Additionally, the team replaced all hardwood floors throughout the apartment, installed new baseboards, painted all walls and ceilings, and built the new LED channel lighting with dimmer switches. In a matter of a few months, the Sacara family had a fully-remodeled home that expressed their style, vision, and improved functionality.

Request a callback